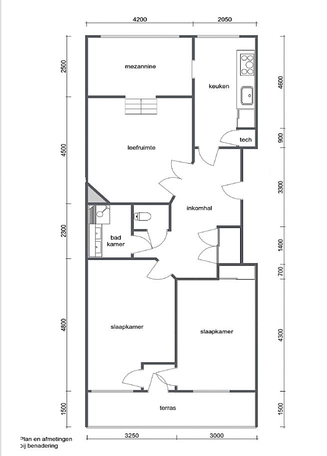
Grondplan verdieping
Plan van de kelderruimte
Je kunt jouw cookievoorkeuren hier aanpassen. Schakel de volgende categorieƫn in of uit en sla de selectie op.